Gutachter, Bausachverständiger, Dipl.-Ing.Kirchner, Sachverständigenbüro Kirchner, Köln Bonn Rhein Sieg
Gutachter, Bausachverständiger, Dipl.-Ing.Kirchner, Sachverständigenbüro Kirchner, Köln Bonn Rhein Sieg
  

Bauanträge

Wir erstellen Bauanträge

 

- in digitaler Form

 

- aber auch in alter Version, der Papierform, konkret

  wichtig bei Baufinanzierungen.

 

 

Stadt Köln: Digitaler Bauantrag

Nutzungsänderungen

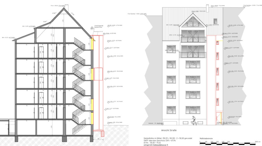
Beispielauszug Dachaufstockungsausbau mit Baugenehmigung. 2023-2026

Neuer Aufzug in Köln

Bauakteneinsicht, z.B. bei der Stadt Köln

Link hierzu:

 

https://www.stadt-koeln.de/service/produkte/20145/index.html

 

Begriffe der LBauO NRW

Verfahrensfreie (früher: Genehmigungsfreie) Bauvorhaben

§ 62 Verfahrensfreie Bauvorhaben

und die Beseitigung von Anlagen

 
(1) Verfahrensfrei sind:
 

1. folgende Gebäude:

a) Gebäude bis zu 75 m³ Brutto-Rauminhalt ohne Aufenthaltsräume, Ställe, Toiletten oder Feuerstätten, im Außenbereich nur, wenn sie einem land- oder forstwirtschaftlichen Betrieb (§ 35 Absatz 1 Nummer 1 des Baugesetzbuchs in der Fassung der Bekanntmachung vom 3. November 2017 (BGBl. I S. 3634) und weder Verkaufs- noch Ausstellungszwecken dienen,

b) Garagen einschließlich überdachter Stellplätze mit einer mittleren Wandhöhe bis zu 3 m und einer Brutto-Grundfläche bis zu insgesamt 30 m², außer im Außenbereich,

c) Gebäude bis zu 4 m Firsthöhe, die nur zum vorübergehenden Schutz von Pflanzen und Tieren bestimmt sind und die einem land- oder forstwirtschaftlichen Betrieb dienen,

d) Gewächshäuser ohne Verkaufsstätten mit einer Firsthöhe bis zu 5 m und nicht mehr als 1 600 m2 Grundfläche, auch ausgestattet mit Solaranlagen, die einem land- oder forstwirtschaftlichen Betrieb oder einem Betrieb der gartenbaulichen Erzeugung im Sinne des § 35 Absatz 1 Nummer 1 und 2 und des § 201 des Baugesetzbuchs dienen,

e) Fahrgastunterstände des öffentlichen Personenverkehrs oder der Schülerbeförderung,

f) Schutzhütten für Wanderer,

g) Terrassenüberdachungen mit einer Fläche bis zu 30 m² und einer Tiefe bis zu 4,50 m, Balkonverglasungen sowie Balkonüberdachungen bis 30 m² Grundfläche, Wintergärten bis 30 m² Brutto-Grundfläche bei Gebäuden der Gebäudeklassen 1 bis 3 mit einem Mindestabstand von 3 m zur Nachbargrenze

h) Gartenlauben in Kleingartenanlagen nach dem Bundeskleingartengesetz vom 28. Februar 1983 (BGBl. I S. 210), das zuletzt durch Artikel 11 des Gesetzes vom 19. September 2006 (BGBl. I S. 2146) geändert worden ist,

i) Dachgauben und vergleichbare Dachaufbauten im Geltungsbereich einer städtebaulichen Satzung oder einer Satzung nach § 89, die Regelungen über die Zulässigkeit, den Standort und die Größe der Anlage enthält, wenn sie den Festsetzungen der Satzung entsprechen und die statisch-konstruktive Unbedenklichkeit von einer nach § 54 Absatz 4 berechtigten Person festgestellt und der Bauherrschaft bescheinigt wurde.

 

2. Anlagen der technischen Gebäudeausrüstung, ausgenommen

a) freistehende Abgasanlagen mit einer Höhe von mehr als 10 m,

b) Aufzüge in Sonderbauten (§ 50),

c) Lüftungsanlagen, raumlufttechnische Anlagen, Warmluftheizungen, Installationsschächte und -kanäle, die innere Brandwände und, außer in Gebäuden der Gebäudeklasse 1 bis 3, Geschosse überbrücken;

 

3. folgende Anlagen zur Nutzung erneuerbarer Energien:

a) Solaranlagen in, an und auf Dach- und Außenwandflächen ausgenommen bei Hochhäusern sowie die damit verbundene Änderung der Nutzung oder der äußeren Gestalt des Gebäudes,

b) gebäudeunabhängige Solaranlagen mit einer Höhe bis zu 3 m und einer Grundfläche bis zu 100 m²,

c) Kleinwindanlagen bis zu 10 m Anlagengesamthöhe sowie die damit verbundene Änderung der Nutzung oder der äußeren Gestalt des Gebäudes, außer in reinen, allgemeinen und besonderen Wohngebieten sowie Mischgebieten,

d) Photovoltaikanlagen auf Kranstellflächen von Windenergieanlagen,

 

4. folgende Anlagen zur Ver- und Entsorgung:

a) Brunnen

b) bauliche Anlagen, die der Telekommunikation, der allgemeinen Versorgung mit Elektrizität, Gas, Öl, Wärme und Wasser dienen, wie Transformatoren-, Schalt-, Regler- oder Pumpstationen, bis 20 m² Grundfläche und 5 m Höhe,

c) Anlagen zur vorübergehenden Sicherstellung der Energie- oder Wärmeversorgung von gewerblich oder industriell genutzten Gebäuden für einen Zeitraum von bis zu 24 Monaten unter den Voraussetzungen des

Satzes 2,

d) Blockheizkraftwerke, Brennstoffzellen und Wärmepumpen, § 42 Absatz 7 bleibt unberührt,

e) Anlagen zur Wasserstofferzeugung, sofern der darin erzeugte Wasserstoff dem Eigenverbrauch der baulichen Anlagen dient, für die sie errichtet werden,

f) Anlagen zur Erzeugung und Nutzung von Wasserstoff einschließlich deren Umhausungen sowie die zugehörigen Gasspeicher, bei denen die Prozessschritte Erzeugung und Nutzung in einem werksmäßig hergestellten Gerät mit einer Speichermenge von bis zu 20 kg pro Gerät, kombiniert sind,

g) Flüssiggastankstellen mit einem Flüssiggaslagerbehälter mit weniger als 3 t Fassungsvermögen für die Versorgung von Kraftfahrzeugen,

h) Anlagen zur Verteilung von Wärme bei Wasserheizungsanlagen einschließlich der Wärmeerzeuger unter der Voraussetzung des Satzes 2, § 42 Absatz 7 bleibt unberührt,

i) Wasserversorgungsanlagen einschließlich der Warmwasserversorgungsanlagen und ihre Wärmeerzeuger sowie Abwasseranlagen unter der Voraussetzung des Satzes 2, mit Ausnahme der Gebäude von Abwasserbehandlungsanlagen,

 

5. folgende Masten, Antennen und ähnliche Anlagen:

a)

aa) Antennen und Antennen tragende Masten mit einer Höhe von 20 m, auf Gebäuden gemessen ab dem Schnittpunkt der Anlage mit der Dachhaut, im Außenbereich ohne Höhenbegrenzung freistehend, wenn eine nach § 54 Absatz 4 berechtigte Person die statisch-konstruktive Unbedenklichkeit festgestellt und der Bauherrschaft bescheinigt hat,

bb) zugehörige Versorgungseinheiten mit einem Brutto-Rauminhalt bis zu 30 m³

sowie die mit solchen Vorhaben verbundene Änderung der Nutzung oder der äußeren Gestalt einer bestehenden baulichen Anlage,

b) ortsveränderliche Antennenträger, die bis zu 48 Monate, vorübergehend aufgestellt werden,

c) Masten und Unterstützungen für Telekommunikationsleitungen, für Leitungen zur Versorgung mit Elektrizität einschließlich der Leitungen selbst, für Seilbahnen, für Leitungen sonstiger Verkehrsmittel und für Sirenen sowie für Fahnen,

d) Masten, die aus Gründen des Brauchtums errichtet werden,

e) Flutlichtmasten auf Sportanlagen, ansonsten bis zu einer Höhe von 10 m, 

f) Blitzschutzanlagen,

 

6. folgende Behälter:

a) ortsfeste Behälter für Flüssiggas mit einem Fassungsvermögen von weniger als 3 t, für sonstige verflüssigte oder nicht verflüssigte Gase mit einem Brutto-Rauminhalt von bis zu 6 m³,

b) ortsfeste Behälter für brennbare oder wassergefährdende Flüssigkeiten mit einem Brutto-Rauminhalt bis zu 10 m³,

c) ortsfeste Behälter sonstiger Art mit einem Brutto-Rauminhalt bis zu 50 m³ und einer Höhe bis zu 3 m,

d) Gärfutterbehälter mit einer Höhe bis zu 6 m und Schnitzelgruben,

e) Kompost- und ähnliche Anlagen sowie

f) Wasserbecken mit einem Beckeninhalt bis zu 100 m³,

 

7. folgende Mauern und Einfriedungen:

a) Mauern einschließlich Stützmauern, Einfriedungen sowie deren Bestückung mit Solaranlagen, mit einer Höhe bis zu 2 m, außer im Außenbereich,

b) offene, sockellose Einfriedungen für Grundstücke, einschließlich deren Bestückung mit Solaranlagen, die einem land- oder forstwirtschaftlichen Betrieb im Sinne der §§ 35 Absatz 1 Nummer 1, 201 Baugesetzbuch dienen,

 

8. private Verkehrsanlagen einschließlich Brücken und Durchlässen mit einer lichten Weite bis zu 5 m und Untertunnelungen mit einem Durchmesser bis zu 3 m,

 

9. Aufschüttungen und Abgrabungen mit einer Höhe oder Tiefe bis zu 2 m und einer Grundfläche bis zu 30 m², im Außenbereich bis zu 400 m²,

 

10. folgende Anlagen in Gärten und zur Freizeitgestaltung:

a) Schwimmbecken mit einem Beckeninhalt bis zu 100 m³ einschließlich dazugehöriger luftgetragener Überdachungen, im Außenbereich nur als Nebenanlage eines höchstens 50 m entfernten Gebäudes mit Aufenthaltsräumen,,

b) Sprungschanzen, Sprungtürme und Rutschbahnen mit einer Höhe bis zu 10 m,

c) Anlagen, die der zweckentsprechenden Einrichtung von Spiel-, Abenteuerspiel-, Bolz- und Sportplätzen, Reit- und Wanderwegen, Trimm- und Lehrpfaden dienen, ausgenommen Gebäude und Tribünen,

d) Wohnwagen, Zelte und bauliche Anlagen, die keine Gebäude sind, auf Camping-, Zelt- und Wochenendplätzen,

e) bauliche Anlagen, die der Gartengestaltung oder der zweckentsprechenden Einrichtung von Gärten dienen, wie Bänke, Sitzgruppen,

 

11. folgende tragende und nichttragende Bauteile:

a) nichttragende und nichtaussteifende Bauteile in baulichen Anlagen, an die keine Brandschutzanforderungen gestellt werden, sofern eine für die jeweilige bauliche Anlage nach § 67 Absatz 1 bis 3 und 6 bauvorlageberechtigte Person die statisch-konstruktive und brandschutztechnische Unbedenklichkeit festgestellt und der Bauherrschaft bescheinigt hat,

b) die Änderung tragender oder aussteifender Bauteile innerhalb von Wohngebäuden der Gebäudeklassen 1 und 2, wenn eine berechtigte Person nach § 54 Absatz 4 der Bauherrschaft bescheinigt, dass die Änderung die Standsicherheit des Wohngebäudes im Ganzen und in seinen einzelnen Teilen nicht gefährdet,

c) Fenster und Türen sowie die dafür bestimmten Öffnungen,

d) Außenwandbekleidungen einschließlich Maßnahmen der Wärmedämmung, ausgenommen bei Hochhäusern, Verblendungen und Verputz baulicher Anlagen; örtliche Bauvorschriften nach § 89 sind zu beachten,

e) Bedachungen einschließlich Maßnahmen der Wärmedämmung, ausgenommen bei Hochhäusern,

f) Verkleidungen von Balkonbrüstungen,

g) Erneuerung von Balkonen oder der Ersatz von Balkonen durch Altane auf dem eigenen Grundstück, sofern eine nach § 54 Absatz 4 berechtigte Person die statisch-konstruktive Unbedenklichkeit festgestellt und der Bauherrschaft bescheinigt hat,

 

12. folgende Werbeanlagen:

a) Werbeanlagen und Hinweiszeichen bis zu einer Größe von 1 m²,

b) Warenautomaten,

c) Werbeanlagen, die nach ihrem Zweck nur vorübergehend für höchstens zwei Monate angebracht werden, außer im Außenbereich,

d) Schilder, die Inhaber und Art gewerblicher Betriebe kennzeichnen (Hinweisschilder), wenn sie vor Ortsdurchfahrten auf einer einzigen Tafel zusammengefasst sind,

e) Werbeanlagen in durch Bebauungsplan festgesetzten Gewerbe-, Industrie- und vergleichbaren Sondergebieten an der Stätte der Leistung mit einer Höhe bis zu 10 m

sowie, soweit sie in, auf oder an einer bestehenden baulichen Anlage errichtet werden, die damit verbundene Änderung der Nutzung oder der äußeren Gestalt der Anlage,

 

13. folgende vorübergehend aufgestellte oder benutzbare Anlagen:

a) Baustelleneinrichtungen einschließlich der Lagerhallen, Schutzhallen und Unterkünfte,

b) Gerüste,

c) Toilettenwagen,

d) Behelfsbauten, die der Landesverteidigung, dem Katastrophenschutz, der Unfallhilfe oder die der Abwehr sonstiger außergewöhnlicher Ereignisse zum Schutz der Bevölkerung dienen,

e) bauliche Anlagen, die für höchstens drei Monate auf genehmigten Messe- und Ausstellungsgeländen errichtet werden, ausgenommen Fliegende Bauten,

f) bauliche Anlagen die zu Straßenfesten, Märkten oder ähnlichen Veranstaltungen nur für kurze Zeit aufgestellt werden und die keine Fliegenden Bauten sind,

g) ortsveränderlich nutzbare und fahrbereit aufgestellte Geflügelställe zum Zweck der Freilandhaltung, die einem land- oder forstwirtschaftlichen Betrieb zur Aufstallung von maximal 800 Tieren dienen, sofern die Anlage maximal vier Wochen an einem Standort verbleibt und frühestens nach acht Wochen wieder auf diesen umgesetzt wird,

 

14. folgende Plätze:

a) unbefestigte Lager- und Abstellplätze, die einem land- oder forstwirtschaftlichen Betrieb im Sinne der §§ 35 Absatz 1 Nummer 1, 201 Baugesetzbuch dienen,

b) Ausstellungsplätze, Abstellplätze und Lagerplätze bis zu 300 m² Fläche, außer in Wohngebieten und im Außenbereich,

c) nicht überdachte Stellplätze für Personenkraftwagen und Motorräder bis zu insgesamt 100 m²,

d) Kinderspielplätze im Sinne des § 8 Absatz 4 Satz 1,

e) Freischankflächen bis zu 40 m2 einschließlich einer damit verbundenen Nutzungsänderung einer Gaststätte, einer Verkaufsstelle des Lebensmittelhandwerks oder eines landwirtschaftlichen Betriebes,

 

15. folgende sonstige Anlagen:

a) Fahrradabstellplätze bis zu insgesamt 100 m²,

b) Füllanlagen für Kraftfahrzeuge an Tankstellen sowie Ladestationen für Elektromobilität und die damit verbundene Änderung der Nutzung,

c) Regale mit einer Lagerhöhe (Oberkante Lagergut) von bis zu 7,50 m Höhe,

d) Denkmale, Skulpturen und Brunnenanlagen sowie Grabdenkmale und Grabsteine auf Friedhöfen,

e) eingefriedete, befestigte oder unbefestigte und ganz oder teilweise mit einem Dach versehene Auslaufflächen für Nutztiere,

f) andere unbedeutende Anlagen oder unbedeutende Teile von Anlagen wie Hauseingangsüberdachungen, Markisen, Rollläden, Terrassen, Maschinenfundamente, Straßenfahrzeugwaagen, Pergolen, Jägerstände, Wildfütterungen, Bienenfreistände, Taubenhäuser, Hofeinfahrten und Teppichstangen.

Die Bauherrschaft hat sich für Anlagen gemäß Nummer 4 Buchstaben c bis i vor der Errichtung der Anlage von der Unternehmerin oder dem Unternehmer oder von einer oder einem Sachverständigen bescheinigen zu lassen, dass die Anlagen den öffentlich-rechtlichen Vorschriften entsprechen. § 74 Absatz 5 Satz 1 und 2 gelten entsprechend.

 

(2) Verfahrensfrei ist die Änderung der Nutzung von Anlagen, wenn

1. für die neue Nutzung keine anderen öffentlich-rechtlichen Anforderungen nach den §§ 64, 65 in Verbindung mit § 68 als für die bisherige Nutzung in Betracht kommen,

2. die Errichtung oder Änderung der Anlagen nach Absatz 1 verfahrensfrei wäre.

Verfahrensfrei ist eine zeitlich begrenzte Änderung der Nutzung von Räumen zu Übernachtungszwecken im Rahmen von erzieherischen, kulturellen, künstlerischen, politischen oder sportlichen Veranstaltungen. § 33 ist zu beachten.

 

(3) Verfahrensfrei ist die Beseitigung von

1. Anlagen nach Absatz 1,

2. freistehenden Gebäuden der Gebäudeklassen 1 und 3 sowie

3. sonstigen Anlagen, die keine Gebäude sind, mit einer Höhe bis zu 10 m.

Die Bauherrschaft kann beantragen, dass für Verfahren nach Satz 1 ein Baugenehmigungsverfahren durchgeführt wird. Im Übrigen ist die beabsichtigte Beseitigung von Anlagen mindestens einen Monat zuvor der Bauaufsichtsbehörde in Textform durch die Bauherrschaft anzuzeigen. Bei nicht freistehenden Gebäuden muss durch eine berechtigte Person nach § 54 Absatz 4 beurteilt und im erforderlichen Umfang nachgewiesen werden, dass das Gebäude oder die Gebäude, an die das zu beseitigende Gebäude angebaut ist, während und nach der Beseitigung standsicher sind. Die Beseitigung ist, soweit notwendig, durch die qualifizierte Tragwerksplanerin oder den qualifizierten Tragwerksplaner zu überwachen. Die Sätze 4 und 5 gelten nicht, soweit an verfahrensfreie Gebäude angebaut ist. § 74 Absatz 9 gilt entsprechend.

 

Quelle:

https://recht.nrw.de/lrgv/gesetz/01012024-bauordnung-fuer-das-land-nordrhein-westfalen-landesbauordnung-2018-bauo-nrw/?suchbegriff=Landesbauordnung#ss-62-verfahrensfreie-bauvorhaben-beseitigung-von-anlagen

 

Freistellungen:

Bausachverständiger und Architekt der Architektenkammer Nordrhein-Westfalen AKNW

Zur Person

Manfred Kirchner

Dipl.-Ing.

Manfred Kirchner

Bausachverständiger Architekt AKNW

 

Köln:

Tel.0221-9894 6281 

Bonn/Rhein-Sieg:

Tel.02241-335742

Handy:

Tel.01713-862 852

Mo-Fr 9.00h-18.00h

 

E-Mail:

info(at)sv-kirchner.com

Bürozeiten:

Mo-Fr 9.00h-18.00h

Mitgliedschaften

Seit über 30 Jahren

Bausachverständiger im

Landesverband NRW:

Studium in Köln:

Energieausweis der DENA

nur für Stammkunden:

In 3.Generation im

Bauwesen tätig.

Hinweis:

Nicht verwandt oder verschwägert mit dem Herrn Immobiliensachverständigen Matthias Kirchner Köln

Bei Google finden Sie uns unter den Suchbegriffen:

Manfred Kirchner Architekt

Druckversion | Sitemap
© 2015 Dipl.-Ing. M.Kirchner. All rights reserved.